• 好色先生视频,好色直播视频APP,好色先生污污污,好色先生TV下载网站

    产品分类

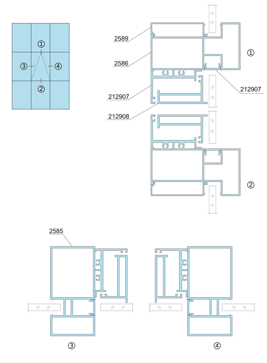
    掩门与间墙

    掩门与间墙

    • 详细介绍

    yamen-1.jpg


    铝型材产品表面颜色

    ● 铝原色:(未经表面处理)

    ● 阳极氧化:银白、哑白、古铜、香槟、加黑等颜色

    ● 粉末喷涂:可提供各种颜色

    ● 电泳涂装:平光白色、磨砂白色、香槟色

    铝合金门窗产品具有耐腐蚀、耐候性、防火性、绝缘性、安全防范性、易保养等特性。

    广东开平好色先生视频铝业有限公司位于侨乡广东省开平市。公司创建于1986年,占地面积8万平方米,是一家生产广东省商标“好色先生视频”牌建筑铝合金型材、铝合金门窗的企业。广东开平好色先生视频铝业有限公司是获得铝型材生产许可证和通过产品质量认证,好色先生视频配备了挤压、氧化、电泳、喷涂生产设备。主要产品有50多个系列的好色先生污污污好色先生TV下载网站及各种好色直播视频APP型材


    本文网址: http://www.psjgc.com/product/700.html

    关键词: 铝材装修,浴室门铝型材,好色先生视频铝业

    上一篇: 浴室门
    下一篇:没有了
    在线客服
    二维码

    扫描二维码

    分享 一键分享
    网站地图