• 好色先生视频,好色直播视频APP,好色先生污污污,好色先生TV下载网站

    产品分类

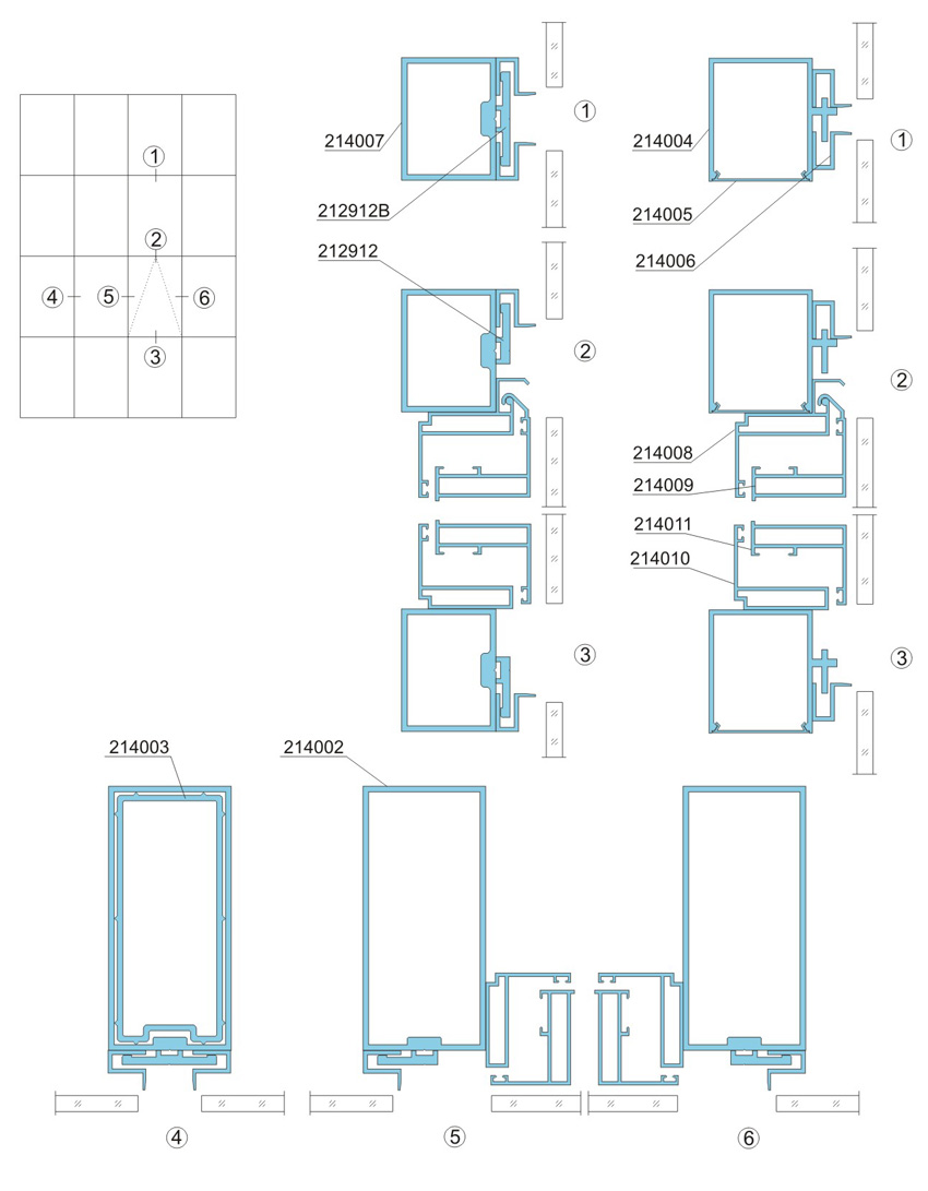
    140系列隐框玻璃幕墙

    140系列隐框玻璃幕墙

    • 详细介绍

    玻璃幕墙.jpg



    好色先生视频幕墙产品具有耐腐蚀、耐候性、防火性、绝缘性、安全防范性、易保养等优良的特性。 

    好色先生视频幕墙的彩色系列既满足了对美观装饰的需要,而且具有耐久性强、不褪色、不老化等优良特点。 

    好色先生视频铝合金门窗产品广泛应用于国内外住宅,并受到广大使用单位和客户的好评。

    广东开平好色先生视频铝业有限公司位于侨乡广东省开平市。公司创建于1986年,占地面积8万平方米,是一家专业生产广东省商标“好色先生视频”牌好色直播视频APP铝材、铝合金门窗、好色直播视频APP铝型材的企业。是获得铝型材生产许可证和通过产品质量认证,2016年被认定为高新技术企业。好色先生视频坚持“质量好、用户至上、不断创新”宗旨,以“提供好产品、满足顾客要求、不断持续改进”的质量方针服务好色先生视频每一个客户。


    本文网址: http://www.psjgc.com/product/655.html

    关键词: 好色先生视频幕墙,隐框幕墙,好色先生视频铝材

    在线客服
    二维码

    扫描二维码

    分享 一键分享
    网站地图